亿纬锂能获得实用新型专利授权:“主控箱及储能柜”
51999
2025年11月22日
证券之星消息,根据天眼查APP数据显示亿纬锂能(300014)新获得一项实用新型专利授权,专利名为“主控箱及储能柜”,专利申请号为CN202422411067.6,授权日为2025年11月7日。

图片来源于网络,如有侵权,请联系删除
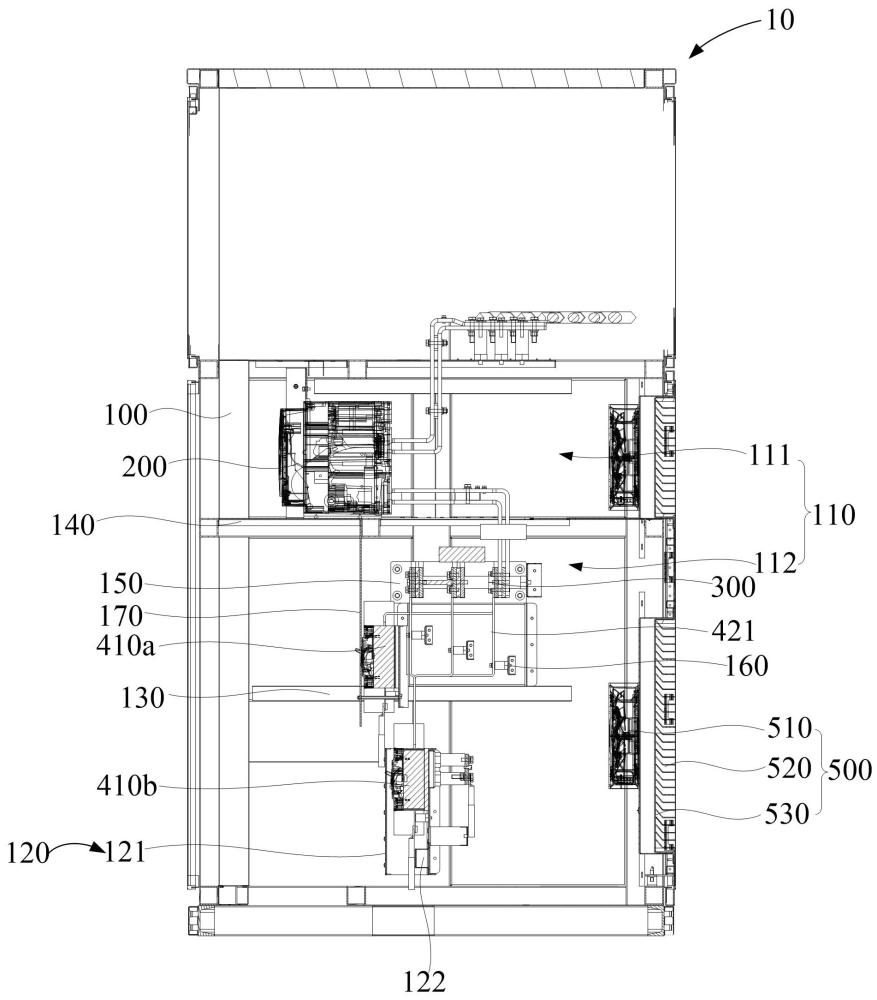
专利摘要:本申请实施例公开了一种主控箱及储能柜。主控箱包括箱体和箱门,箱体设有一开口的空腔,箱门与箱体转动连接,并在开口处封闭空腔,空腔内设有配电模块和电池管理系统的主控模块,配电模块与电池管理系统电连接,并用于为电池管理系统分配电源,以实现为电池管理系统提供辅助电源,进而实现了将配电与控制集成于主控箱中,无需在汇流柜中集成电池管理系统的总控,减少了汇流柜的体积,进而减少了汇流柜在储能柜中的占用空间,优化了储能柜的配电、汇流以及消防的布局。

图片来源于网络,如有侵权,请联系删除
今年以来亿纬锂能新获得专利授权662个,较去年同期增加了19.06%。结合公司2025年中报财务数据,今年上半年公司在研发方面投入了12.61亿元,同比减11.33%。

图片来源于网络,如有侵权,请联系删除
通过天眼查大数据分析,惠州亿纬锂能股份有限公司共对外投资了47家企业,参与招投标项目219次;财产线索方面有商标信息376条,专利信息4104条,著作权信息90条;此外企业还拥有行政许可421个。
数据来源:天眼查APP
以上内容为证券之星据公开信息整理,由AI算法生成(网信算备310104345710301240019号),不构成投资建议。